Lanzarote Music Factory – concurso – España

Deja un comentario
Uncategorized

 

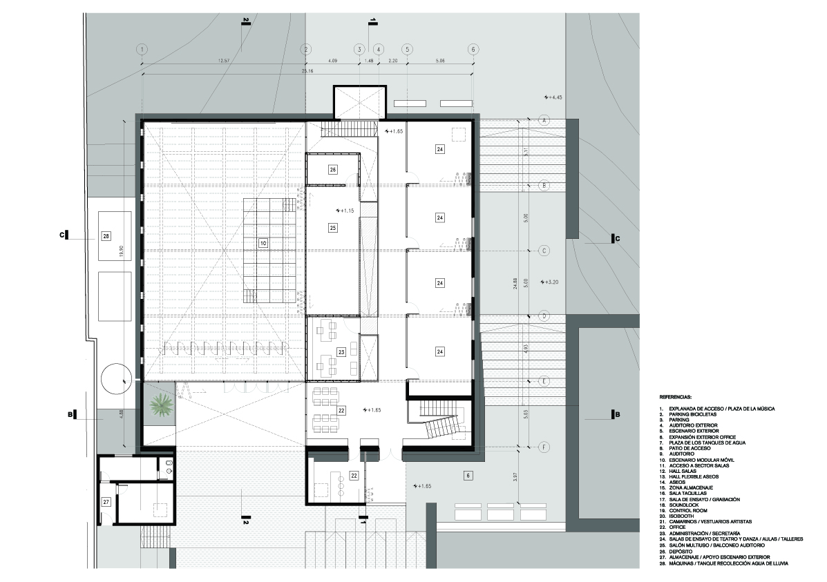
Mencion Honorífica – Concurso Internacional «Lanzarote Music Factory». Convocado por el Cabildo de Lanzarote y Rethinking.  Centro cultural + laboratorio o vivero musical en Islas Canarias, reciclando un viejo depósito de agua de la isla de Lanzarote.

Equipo de Proyecto: Nicolás Rosales + Nicolás Picón, arqs

Deja un comentario